$799,900
LOT 10 Ducharme
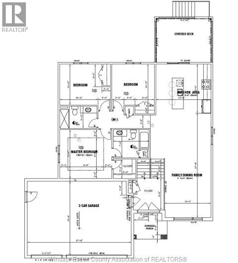
Features & amenities
- Double width or more driveway
- Front Driveway
- Gravel Driveway
Additional details
- MLS® # 26002983
- Type Single Family
- Subtype House
Listing is presented by
team CUSH
PINNACLE PLUS REALTY LTD.
$799,900